Ремонт автобетононасоса Putzmeister M 42 BRF 42.14 H
Категория 3
Диагностика и ремонт автобетононасоса Putzmeister M 42 BRF 42.14 H осуществляется на собственной базе в г. Москва, Ижорский проезд 11, стр 3. Все необходимые запчасти находятся на складе. При отсутствии необходимых запчастей для бетононасоса, срок доставки составляет около 7-10 дней.
Наши работы по ремонту бетононасоса мы публикуем в разделе наше видео и фотогалерея.
Стоимость ремонта Putzmeister M 42 BRF 42.14 H
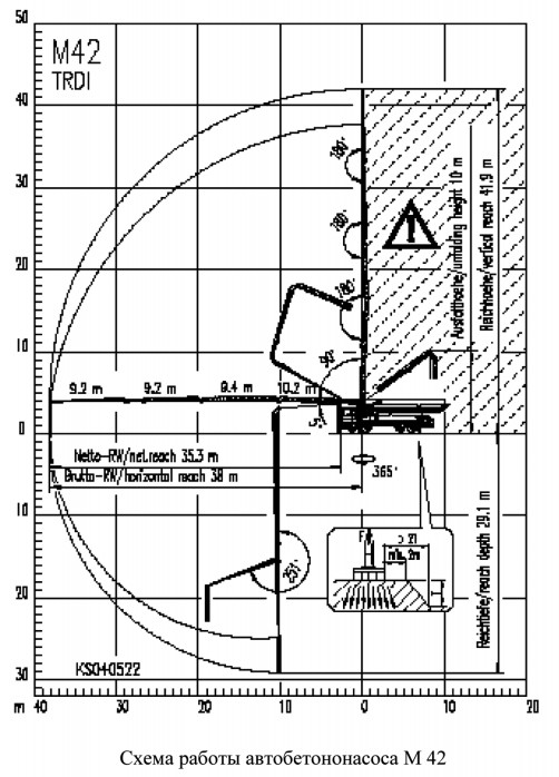
41,9
4-х осный автомобиль среднего класса
38
70/112
140/88
BRF 42.14 H


